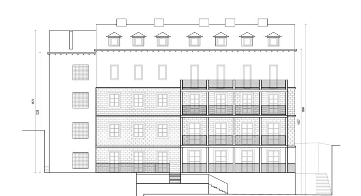
Hotel Gruž objavio je otvoreno nadmetanje za nabavu radova na projektu „Rekonstrukcija (dogradnja i nadogradnja) Hotela Gruž u dom za starije i nemoćne osobe tipa hotel“. Sukladno glavnom projektu, dom će imati ukupno 48 ležajeva u 32 smještajne jedinice i to 16 jednokrevetnih soba, 13 dvokrevetnih i tri apartmana. Predviđene su i tri jednokrevetne sobe za osobe s invaliditetom, odnosno osobe smanjene pokretljivosti, smještene u suterenu objekta.
Dom će u konačnici imati nešto više od 1.300 kvadratnih metara bruto površine. Od postojeće građevine zadržat će se 690 kvadratnih metara, dok će se dio garaže i krovište srušiti kako bi se nadogradilo oko 620 dodatnih kvadratnih metara. Ovom prenamjenom zgrade dobit će se koristan prostor podijeljen na suteren, prizemlje, prvi i drugi kat te potkrovlje, uz racionalizaciju troškova i optimalnu kvalitetu smještaja. U suterenu će biti smješten prostor za pogon s praonicom, spremišta, prostor za osoblje te čajna kuhinja, dok će se prostor uprave nalaziti na novoizgrađenom sjeverozapadnom dijelu. U objekt će se ugraditi dizalo, sve sobe imat će direktan pristup kupaonicama, a gotovo trećina njih će imati lođe. Za dodatnu udobnost korisnika, predviđen je i prostrani dnevni boravak s kafićem te velika terasa.
Prema projektnom zadatku, rok trajanja rekonstrukcije je 12 mjeseci od dana uvođenja izvođača u posao, a ukupna procijenjena vrijednost nabave iznosi 17 milijuna kuna. Ponude moraju biti zaprimljene najkasnije do 16. ožujka 2020. zaključno u 12 sati na adresi Hotela Gruž, bez obzira na način dostave, a dokumentacija je dostupna na internetskoj stranici dioničkog društva Hotel Gruž.
Izgradnjom doma umirovljenika u Gružu zadovoljit će se dio potrebe smještaja dubrovačkih umirovljenika. Uz novi dom kod Opće bolnice za 200 stalnih i 70 dnevnih korisnika usluga, čija je gradnja u planu za 2021. godinu, riječ je o prioritetu ove gradske uprave u segmentu društvene infrastrukture Grada Dubrovnika.

























